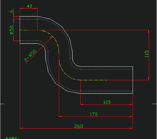
Steering steel pipe (16)
Part Number: 34M60-06030
Applicable Models: HIGER
Part Unit: Parts
Part Specifications:
Views:
4
Part Number: 34M60-06030