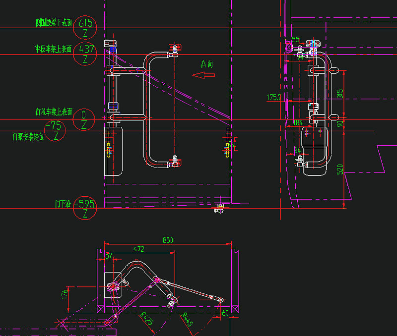
Pad plate
Part Number: 31LCP-05016
Applicable Models: HIGER
Part Unit: Parts
Part Specifications:
Views:
2
Part Number: 31LCP-05016